• Skip to primary navigation
  • Skip to main content
  • Skip to footer

Nick, & Cindy Davis

  • Blog
  • Contact Us
    • Nick Davis
      • Contact Me
      • (813) 300-7116
    • Cindy Davis
      • (813) 695-6475
      • Contact Me
  • Find Your Home
        • Popular Searches
          • Anna Maria
          • Foreclosures
          • Golf Course
          • Horse Homes
          • In Law Suite
          • Luxury Homes
          • Vintage Homes
          • Waterfront Homes
        • Hillsborough
          • 55+ Communities
          • Community Videos
          • All Homes
          • New Construction
          • Vacant Land
          • Waterfront Properties
        • Pasco
          • 55+ Communities
          • Community Videos
          • County Crime Map
          • All Homes
          • New Construction
          • Vacant Land
          • Waterfront Properties
  • Map Searches
    • Hillsbourgh
      • Apollo Beach
      • Avila
      • Basset Creek
      • Brandon
      • Cross Creek
      • Seffner
      • Cheval
      • Cordoba
      • Gibsonton
      • K-Bar Ranch
      • Keystone
      • Lithia
      • Lutz
      • Odessa
      • Plant City
      • Riverview
      • Ruskin
      • Temple Terrace
      • Thonotosassa
      • Valrico
      • Waterfront Homes
      • Wimauma
    • Pasco
      • Dade City
      • Gulf Harbors
      • Homesteads
      • Land O Lakes
      • Estancia
      • Hudson
      • Meadow Pointe
      • Ridge at Wiregrass
      • Ridge Manor
      • San Antonio
      • Seven Oaks
      • Seven Springs
      • Spring Hill
      • Starkey Ranch
      • Trilby
      • Trinity
      • Waterfront Homes
      • Watergrass
      • Wesley Chapel
      • Zephyrhills
  • Neighborhoods
        • Hillsborough
          • Apollo Beach
          • Brandon
          • Keystone
          • Lithia
          • Lutz
          • New Tampa
          • Odessa
          • Seminole Heights
          • Plant City
          • South Tampa
          • Stonelake Ranch
          • Riverview
          • Ruskin
          • Valrico
          • Tampa
          • Temple Terrace
          • Westchase
          • Westshore Yacht Club
            • Inlet Park Community
        • Pasco
          • Bayonet Point
          • Dade City
          • Bexley Ranch
          • Holiday
          • Gulf Harbors
          • Hudson
          • Land O Lakes
          • New Port Richey
          • Ridge Manor
          • San Antonio
          • Spring Hill
          • Starkey Ranch
          • Trinity
          • Wesley Chapel
          • Zephyrhills
  • Resources
    • APPS / Videos
      • Community Videos
      • Real Estate Videos
    • School Information
      • Hillsborough County
      • Pasco County
    • Discover Tampa
      • Kid Friendly Fun
      • Things to Do in Tampa
      • Visit Tampa Bay -Nightlife
  • Why Use Us
    • Our Team
      • Cindy & Nick
    • Buying a Home
      • Search MLS Directly
      • Down Payment Program
      • Home Buying Tips
      • Home Buying Process
      • Mortgage Calculator
      • Videos for Buyers
    • Selling My House
      • Featured Homes
      • Home Selling Process
      • Home Selling Tips
      • Videos for Sellers
    • Why Choose Us
      • Areas that We Cover
      • Client Testimonials
      • Homeownership APP
      • Our Track Record
      • YouTube Channel
Login
 
Save Search
Recommended For You
Favorites
Email Alerts
Contact Us
 
Let us know what you're looking for, and we'll let you know what we find
Prefer to have someone call? Just let us know
Want to see about scheduling a showing?
(preferrably in the future)
 / 
  +   Additional Filters/Criteria
sqft use acres
homes from to
Show Map
  • List View
  • Grid View
Sorted by
121 - 150 of 500+ | Previous Page 5 of 17 Next
  1. Photo of 1702 Horseshoe Drive, Plant City, FL 33566 (MLS # TB8438926)
    $459,000
    Photo of 1702 Horseshoe Drive, Plant City, FL 33566 (MLS # TB8438926)
    Photo of 1702 Horseshoe Drive, Plant City, FL 33566 (MLS # TB8438926)
    28
     
    1702 Horseshoe Drive, Plant City, FL
    1702 Horseshoe Drive
    Plant City, FL
    • 4 Beds
    • 2 Baths
    • 2,257 Home (sqft)
    • 2 Baths
    • 15,246 Lot (sqft)
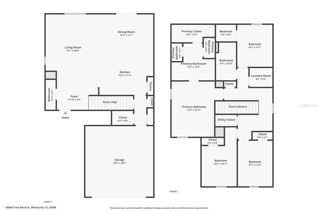
  2. Photo of 16849 Trite Bend Street, Wimauma, FL 33598 (MLS # TB8439458)
    $329,000
    Photo of 16849 Trite Bend Street, Wimauma, FL 33598 (MLS # TB8439458)
    Photo of 16849 Trite Bend Street, Wimauma, FL 33598 (MLS # TB8439458)
    54
     
     
    16849 Trite Bend Street, Wimauma, FL
    16849 Trite Bend Street
    Wimauma, FL
    • 4 Beds
    • 3 Baths
    • 2,048 Home (sqft)
    • 3 Baths
    • 4,792 Lot (sqft)
  3. Photo of 348 Jacksonville Court, Kissimmee, FL 34759 (MLS # O6354075)
    $319,900
    Photo of 348 Jacksonville Court, Kissimmee, FL 34759 (MLS # O6354075)
    Photo of 348 Jacksonville Court, Kissimmee, FL 34759 (MLS # O6354075)
    26
     
     
    348 Jacksonville Court, Kissimmee, FL
    348 Jacksonville Court
    Kissimmee, FL
    • 3 Beds
    • 2 Baths
    • 1,590 Home (sqft)
    • 2 Baths
    • 8,712 Lot (sqft)
  4. Photo of 320 W Ohio Avenue, Orange City, FL 32763 (MLS # TB8439665)
    $230,000
    Photo of 320 W Ohio Avenue, Orange City, FL 32763 (MLS # TB8439665)
    Photo of 320 W Ohio Avenue, Orange City, FL 32763 (MLS # TB8439665)
    33
     
     
    320 W Ohio Avenue, Orange City, FL
    320 W Ohio Avenue
    Orange City, FL
    • 3 Beds
    • 2 Baths
    • 1,000 Home (sqft)
    • 2 Baths
    • 10,455 Lot (sqft)
  5. Photo of 4209 SE 5th Street, Ocala, FL 34471 (MLS # OM711863)
    $449,000
    Photo of 4209 SE 5th Street, Ocala, FL 34471 (MLS # OM711863)
    Photo of 4209 SE 5th Street, Ocala, FL 34471 (MLS # OM711863)
    35
     
    4209 SE 5th Street, Ocala, FL
    4209 SE 5th Street
    Ocala, FL
    • 4 Beds
    • 2 Baths
    • 2,158 Home (sqft)
    • 2 Baths
    • 30,057 Lot (sqft)
  6. Photo of 281 Farmington Street SW, Palm Bay, FL 32908 (MLS # OM711879)
    $49,300
    Photo of 281 Farmington Street SW, Palm Bay, FL 32908 (MLS # OM711879)
    Photo of 281 Farmington Street SW, Palm Bay, FL 32908 (MLS # OM711879)
    1
     
    281 Farmington Street SW, Palm Bay, FL
    281 Farmington Street SW
    Palm Bay, FL
    • 0 Beds
    • 0 Baths
    • 0 Home (sqft)
    • 0 Baths
    • 10,019 Lot (sqft)
  7. Photo of 45 Euclid Avenue, Englewood, FL 34223 (MLS # N6141082)
    $275,000
    Photo of 45 Euclid Avenue, Englewood, FL 34223 (MLS # N6141082)
    Photo of 45 Euclid Avenue, Englewood, FL 34223 (MLS # N6141082)
    38
     
     
    45 Euclid Avenue, Englewood, FL
    45 Euclid Avenue
    Englewood, FL
    • 3 Beds
    • 2 Baths
    • 1,213 Home (sqft)
    • 2 Baths
    • 6,099 Lot (sqft)
  8. Photo of 11724 Phoenix Circle, Tampa, FL 33618 (MLS # TB8438569)
    $699,000
    Photo of 11724 Phoenix Circle, Tampa, FL 33618 (MLS # TB8438569)
    Photo of 11724 Phoenix Circle, Tampa, FL 33618 (MLS # TB8438569)
    51
     
    11724 Phoenix Circle, Tampa, FL
    11724 Phoenix Circle
    Tampa, FL
    • 4 Beds
    • 2 Baths
    • 1,839 Home (sqft)
    • 2 Baths
    • 15,246 Lot (sqft)
  9. Photo of 10654 Washington Road, Port Charlotte, FL 33981 (MLS # O6354150)
    $349,400
    Photo of 10654 Washington Road, Port Charlotte, FL 33981 (MLS # O6354150)
    Photo of 10654 Washington Road, Port Charlotte, FL 33981 (MLS # O6354150)
    26
     
    10654 Washington Road, Port Charlotte, FL
    10654 Washington Road
    Port Charlotte, FL
    • 4 Beds
    • 2 Baths
    • 2,587 Home (sqft)
    • 2 Baths
    • 10,890 Lot (sqft)
  10. Photo of 1120 Webster Street, Leesburg, FL 34748 (MLS # G5103558)
    $459,900
    Photo of 1120 Webster Street, Leesburg, FL 34748 (MLS # G5103558)
    Photo of 1120 Webster Street, Leesburg, FL 34748 (MLS # G5103558)
    30
     
    1120 Webster Street, Leesburg, FL
    1120 Webster Street
    Leesburg, FL
    • 6 Beds
    • 6 Baths
    • 3,382 Home (sqft)
    • 6 Baths
    • 23,958 Lot (sqft)
  11. Photo of Co Rd 204, Oxford, FL 34484 (MLS # G5103540)
    $300,000
    Photo of Co Rd 204, Oxford, FL 34484 (MLS # G5103540)
    Photo of Co Rd 204, Oxford, FL 34484 (MLS # G5103540)
    21
     
     
    Co Rd 204, Oxford, FL
    Co Rd 204
    Oxford, FL
    • 0 Beds
    • 0 Baths
    • 0 Home (sqft)
    • 0 Baths
    • 10.05 Lot (ac)
  12. Photo of 951 Cr 453, Lake Panasoffkee, FL 33538 (MLS # O6353925)
    $229,000
    Photo of 951 Cr 453, Lake Panasoffkee, FL 33538 (MLS # O6353925)
    Photo of 951 Cr 453, Lake Panasoffkee, FL 33538 (MLS # O6353925)
    17
     
    951 Cr 453, Lake Panasoffkee, FL
    951 Cr 453
    Lake Panasoffkee, FL
    • 2 Beds
    • 1 Bath
    • 784 Home (sqft)
    • 1 Bath
    • 35,284 Lot (sqft)
  13. Photo of 633 Starboard Avenue, Edgewater, FL 32141 (MLS # FC313571)
    $275,000
    Photo of 633 Starboard Avenue, Edgewater, FL 32141 (MLS # FC313571)
    Photo of 633 Starboard Avenue, Edgewater, FL 32141 (MLS # FC313571)
    58
     
    633 Starboard Avenue, Edgewater, FL
    633 Starboard Avenue
    Edgewater, FL
    • 2 Beds
    • 2 Baths
    • 1,431 Home (sqft)
    • 2 Baths
    • 8,712 Lot (sqft)
  14. Photo of 4143 NE 9th Avenue, Cape Coral, FL 33909 (MLS # A4669193)
    $60,000
    Photo of 4143 NE 9th Avenue, Cape Coral, FL 33909 (MLS # A4669193)
    Photo of 4143 NE 9th Avenue, Cape Coral, FL 33909 (MLS # A4669193)
    1
     
    4143 NE 9th Avenue, Cape Coral, FL
    4143 NE 9th Avenue
    Cape Coral, FL
    • 0 Beds
    • 0 Baths
    • 0 Home (sqft)
    • 0 Baths
    • 10,019 Lot (sqft)
  15. Photo of 2663 Glenbuck Court, Ocoee, FL 34761 (MLS # O6352293)
    $515,000
    Photo of 2663 Glenbuck Court, Ocoee, FL 34761 (MLS # O6352293)
    Photo of 2663 Glenbuck Court, Ocoee, FL 34761 (MLS # O6352293)
    35
     
    2663 Glenbuck Court, Ocoee, FL
    2663 Glenbuck Court
    Ocoee, FL
    • 3 Beds
    • 2 Baths
    • 1,673 Home (sqft)
    • 2 Baths
    • 8,712 Lot (sqft)
  16. Photo of 2419 W Main Street, Leesburg, FL 34748 (MLS # G5103554)
    $229,900
    Photo of 2419 W Main Street, Leesburg, FL 34748 (MLS # G5103554)
    Photo of 2419 W Main Street, Leesburg, FL 34748 (MLS # G5103554)
    28
     
    2419 W Main Street, Leesburg, FL
    2419 W Main Street
    Leesburg, FL
    • 3 Beds
    • 2 Baths
    • 1,550 Home (sqft)
    • 2 Baths
    • 10,890 Lot (sqft)
  17. Photo of Tbd Cr 738e, Webster, FL 33597 (MLS # G5103551)
    $230,000
    Photo of Tbd Cr 738e, Webster, FL 33597 (MLS # G5103551)
    Photo of Tbd Cr 738e, Webster, FL 33597 (MLS # G5103551)
    41
     
    Tbd Cr 738e, Webster, FL
    Tbd Cr 738e
    Webster, FL
    • 0 Beds
    • 0 Baths
    • 0 Home (sqft)
    • 0 Baths
    • 10.02 Lot (ac)
  18. Photo of 253 Rain Lily Avenue, Spring Hill, FL 34609 (MLS # TB8439857)
    $360,000
    Photo of 253 Rain Lily Avenue, Spring Hill, FL 34609 (MLS # TB8439857)
    Photo of 253 Rain Lily Avenue, Spring Hill, FL 34609 (MLS # TB8439857)
    2
     
    253 Rain Lily Avenue, Spring Hill, FL
    253 Rain Lily Avenue
    Spring Hill, FL
    • 4 Beds
    • 2 Baths
    • 1,809 Home (sqft)
    • 2 Baths
    • 5,663 Lot (sqft)
  19. Photo of 9508 Ashburn Creek Lane, Tampa, FL 33610 (MLS # TB8440004)
    $299,000
    Photo of 9508 Ashburn Creek Lane, Tampa, FL 33610 (MLS # TB8440004)
    Photo of 9508 Ashburn Creek Lane, Tampa, FL 33610 (MLS # TB8440004)
    18
     
    9508 Ashburn Creek Lane, Tampa, FL
    9508 Ashburn Creek Lane
    Tampa, FL
    • 3 Beds
    • 3 Baths
    • 1,670 Home (sqft)
    • 3 Baths
    • 1,307 Lot (sqft)
  20. Photo of 220 Derwent Boulevard, Fort Myers, FL 33908 (MLS # C7516579)
    $189,900
    Photo of 220 Derwent Boulevard, Fort Myers, FL 33908 (MLS # C7516579)
    Photo of 220 Derwent Boulevard, Fort Myers, FL 33908 (MLS # C7516579)
    17
     
    220 Derwent Boulevard, Fort Myers, FL
    220 Derwent Boulevard
    Fort Myers, FL
    • 2 Beds
    • 1 Bath
    • 672 Home (sqft)
    • 1 Bath
    • 4,792 Lot (sqft)
  21. Photo of 5700 Gulf Shores Drive #B234, Boca Grande, FL 33921 (MLS # D6144346)
    $1,350,000
    Photo of 5700 Gulf Shores Drive #B234, Boca Grande, FL 33921 (MLS # D6144346)
    Photo of 5700 Gulf Shores Drive #B234, Boca Grande, FL 33921 (MLS # D6144346)
    23
     
    5700 Gulf Shores Drive #B234, Boca Grande, FL
    5700 Gulf Shores Drive #B234
    Boca Grande, FL
    • 2 Beds
    • 2 Baths
    • 1,326 Home (sqft)
    • 2 Baths
    • 1,743 Lot (sqft)
  22. Photo of Marion Oaks Trail #I, Ocala, FL 34473 (MLS # S5137002)
    $49,995
    Photo of Marion Oaks Trail #I, Ocala, FL 34473 (MLS # S5137002)
    Photo of Marion Oaks Trail #I, Ocala, FL 34473 (MLS # S5137002)
    1
     
    Marion Oaks Trail #I, Ocala, FL
    Marion Oaks Trail #I
    Ocala, FL
    • 0 Beds
    • 0 Baths
    • 0 Home (sqft)
    • 0 Baths
    • 10,019 Lot (sqft)
  23. Photo of 4405 Worthington Circle, Palm Harbor, FL 34685 (MLS # TB8437341)
    $595,000
    Photo of 4405 Worthington Circle, Palm Harbor, FL 34685 (MLS # TB8437341)
    Photo of 4405 Worthington Circle, Palm Harbor, FL 34685 (MLS # TB8437341)
    93
     
    4405 Worthington Circle, Palm Harbor, FL
    4405 Worthington Circle
    Palm Harbor, FL
    • 4 Beds
    • 3 Baths
    • 2,308 Home (sqft)
    • 3 Baths
    • 9,148 Lot (sqft)
  24. Photo of 10739 Bonne Chance Drive, Orlando, FL 32832 (MLS # O6353825)
    $995,000
    Photo of 10739 Bonne Chance Drive, Orlando, FL 32832 (MLS # O6353825)
    Photo of 10739 Bonne Chance Drive, Orlando, FL 32832 (MLS # O6353825)
    53
     
    10739 Bonne Chance Drive, Orlando, FL
    10739 Bonne Chance Drive
    Orlando, FL
    • 4 Beds
    • 3 Baths
    • 2,896 Home (sqft)
    • 3 Baths
    • 7,406 Lot (sqft)
  25. Photo of 4380 W Malaluka Circle, Citrus Springs, FL 34433 (MLS # G5103555)
    $725,000
    Photo of 4380 W Malaluka Circle, Citrus Springs, FL 34433 (MLS # G5103555)
    Photo of 4380 W Malaluka Circle, Citrus Springs, FL 34433 (MLS # G5103555)
    46
     
    4380 W Malaluka Circle, Citrus Springs, FL
    4380 W Malaluka Circle
    Citrus Springs, FL
    • 4 Beds
    • 4 Baths
    • 2,393 Home (sqft)
    • 4 Baths
    • 1.78 Lot (ac)
  26. Photo of 2201 Juniper Berry Drive, Minneola, FL 34715 (MLS # O6353905)
    $529,000
    Photo of 2201 Juniper Berry Drive, Minneola, FL 34715 (MLS # O6353905)
    Photo of 2201 Juniper Berry Drive, Minneola, FL 34715 (MLS # O6353905)
    23
     
     
    2201 Juniper Berry Drive, Minneola, FL
    2201 Juniper Berry Drive
    Minneola, FL
    • 4 Beds
    • 3 Baths
    • 2,100 Home (sqft)
    • 3 Baths
    • 6,099 Lot (sqft)
  27. Photo of 7950 SW 140th Avenue #Marion, Dunnellon, FL 34432 (MLS # OM711883)
    $1,895,000
    Photo of 7950 SW 140th Avenue #Marion, Dunnellon, FL 34432 (MLS # OM711883)
    Photo of 7950 SW 140th Avenue #Marion, Dunnellon, FL 34432 (MLS # OM711883)
    36
     
    7950 SW 140th Avenue #Marion, Dunnellon, FL
    7950 SW 140th Avenue #Marion
    Dunnellon, FL
    • 0 Beds
    • 0 Baths
    • 0 Home (sqft)
    • 0 Baths
    • 50.00 Lot (ac)
  28. Photo of 15615 Appleton Boulevard, Port Charlotte, FL 33981 (MLS # D6144326)
    $60,000
    Photo of 15615 Appleton Boulevard, Port Charlotte, FL 33981 (MLS # D6144326)
    Photo of 15615 Appleton Boulevard, Port Charlotte, FL 33981 (MLS # D6144326)
    7
     
    15615 Appleton Boulevard, Port Charlotte, FL
    15615 Appleton Boulevard
    Port Charlotte, FL
    • 0 Beds
    • 0 Baths
    • 0 Home (sqft)
    • 0 Baths
    • 21,780 Lot (sqft)
  29. Photo of 10945 SW 75th Avenue, Ocala, FL 34476 (MLS # OM711913)
    $199,999
    Photo of 10945 SW 75th Avenue, Ocala, FL 34476 (MLS # OM711913)
    Photo of 10945 SW 75th Avenue, Ocala, FL 34476 (MLS # OM711913)
    1
     
    10945 SW 75th Avenue, Ocala, FL
    10945 SW 75th Avenue
    Ocala, FL
    • 2 Beds
    • 2 Baths
    • 864 Home (sqft)
    • 2 Baths
    • 10,019 Lot (sqft)
  30. Photo of 6130 Fig Road, Sebring, FL 33875 (MLS # P4936749)
    $25,900
    Photo of 6130 Fig Road, Sebring, FL 33875 (MLS # P4936749)
    Photo of 6130 Fig Road, Sebring, FL 33875 (MLS # P4936749)
    7
     
    6130 Fig Road, Sebring, FL
    6130 Fig Road
    Sebring, FL
    • 0 Beds
    • 0 Baths
    • 0 Home (sqft)
    • 0 Baths
    • 43,560 Lot (sqft)
Previous Page 5 of 17 Next
The information contained herein has been provided by My Florida Regional MLS DBA Stellar MLS. IDX information is provided exclusively for consumers' personal, non-commercial use, that it may not be used for any purpose other than to identify prospective properties consumers may be interested in purchasing, and that the data is deemed reliable but is not guaranteed accurate by the MLS. Listings last updated 10/21/25 2:50 PM PDT.

This IDX Software is (c) Diverse Solutions 2025. Privacy | Terms & Conditions

 
 

Save favorite listings, searches, and get the latest alerts

or
Sign in to, or create an account using your existing social account:

Forgot password?
Create an Account
Fill in your email, and we'll send you a message with instructions on how to reset your password. Please make sure to use the same email address you provided during registration.
close Back to Login
close

Save your favorite listings, searches, and receive the latest listing alerts

or
Sign in to, or create an account using your existing social account:

Already have an account? Login

Footer

Nick & Cindy Davis

Contact Us

If You Would Like to Contact Nick & Cindy Davis, simply click Contact Us  below and we will be in touch. We are always available at 813-300-7116.

contact-us2

Copyright © 2025 · Agent Focused Pro by Winning Agent · Log in